Fråga mig om den här bostaden!
Staffan Fritzell
Fastighetsmäklare/DelägareE-post:staffan@roimakleri.se
Vattholmavägen 76
5.495.000 kr3 rum90 kvm1 312 kvm
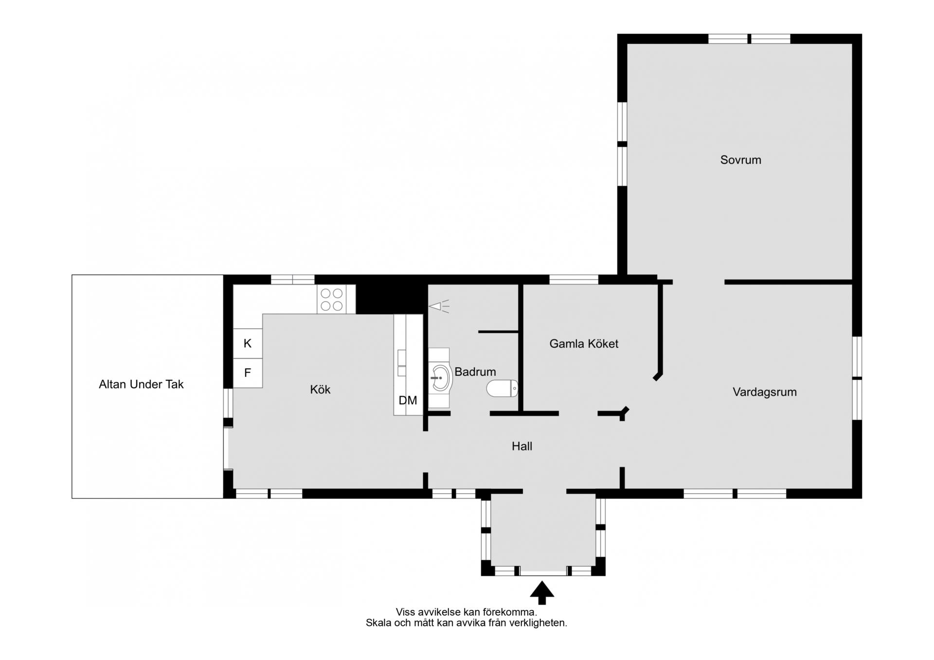
Välkommen till en charmig enplansvilla i historiska Gamla Uppsala, där en klassiskt röd träfasad med vita knutar döljer ett hem fyllt av ljus och oändliga möjligheter. Den karaktärsfulla inglasade entrén sätter tonen för huset redan från start innan man kliver vidare in i en välkomnande hall. Direkt till vänster möts vi av bostadens hjärta, ett stilrent och moderniserat kök som är en fröjd för både ögat och kocken. Här finner ni vita skåpsfronter som delvis är i vitrin tillsammans med ljusa trägolv och en lekfull, blommig tapet som ramar in matplatsen vid fönstret. Från köket når man smidigt den stora altanen under tak, vilken fungerar som ett extra rum under sommarhalvåret. Vidare genom hallen når vi det som benämns som det gamla köket; ett rum som bär på en enorm potential för den kreative. Här finns en unik renoveringsmöjlighet att skapa ett extra sovrum, ett rymligt hemmakontor eller kanske en utbyggnad av de sociala ytorna, helt utifrån era egna behov och drömmar.
I direkt anslutning ligger vardagsrummet, där generösa fönsterpartier i flera väderstreck skapar en luftig atmosfär med plats för både stor soffgrupp och läshörna. Husets privata sfär utgörs av ett mycket rymligt sovrum längst in i huset, där den neutrala färgskalan och de goda förvaringsmöjligheterna i de vita garderoberna skapar en harmonisk miljö med plats för både dubbelsäng och en dedikerad arbetsplats invid fönstret. Det centralt placerade badrummet är helkaklat i tidlösa färger och praktiskt utrustat med både dusch, kommod och är förberett för tvättmaskin för en smidig vardag.
Utvändigt erbjuder den plana tomten en perfekt canvas för trädgårdsdrömmar, allt i en miljö där historiens vingslag möter moderna bekvämligheter på 90 välplanerade kvadratmeter. Att bo i Gamla Uppsala är att leva mitt i ett stycke svensk historia, omgiven av de ikoniska kungshögarna och vidsträckta grönområden som bjuder in till både motion och rekreation. Området är känt för sin unika atmosfär där lantligt lugn kombineras med stadens bekvämligheter på bekvämt avstånd.
Detta är en kommande försäljning så varmt välkommen att kontakta ansvarig mäklare för mer information!
Fakta
Interiör
Ekonomi & Drift
Plan
Besiktning
Dokument & Länkar
Karta
Visning
Bilder
Gamla Uppsala
